
Dự án Vinhomes Urban Lake, tọa lạc tại xã Tân Mỹ, huyện Đức Hòa, được mệnh danh là “viên ngọc quý” của tỉnh Long An. Với quy mô đồ sộ lên đến 900 ha, khu đô thị Vinhomes Tân Mỹ cung cấp đa dạng các loại hình bất động sản, từ nhà phố, biệt thự đến căn hộ cao cấp. Không chỉ vậy, dự án còn chú trọng đầu tư vào hệ thống tiện ích đẳng cấp, bao gồm các thương hiệu đã được khẳng định như Vinmec, Vinscholl, Vinmart và Vinpro, kiến tạo một không gian sống tinh tế, sang trọng theo phong cách đô thị châu Âu hiện đại dành cho cư dân.
| Tên dự án: | Vinhomes Urban Lake |
| Tên thương mại: | Vinhomes Urban Lake |
| Vị trí: | Xã Tân Mỹ, huyện Đức Hòa, tỉnh Long An |
| Chủ đầu tư: | Tập đoàn VinGroup |
| Website dự án: | https://vinhomesurbanlake.ramo.vn/ |
| Ngân hàng bảo lãnh dự án: | Techcombank |
| Loại hình sản phẩm: | Nhà phố – Biệt thự – Căn hộ – Officetel – Shophouse & Khách sạn |
| Diện tích dự án: | 900 ha |
| Quy mô dự án: | 4 phân khu chức năng chính: + HeartBay + LifeBay + EcoBay + BlueBay |
| Tổng mức đầu tư dự kiến: | 20.000 tỷ đồng |
| Quy mô dân số dự kiến: | 200.000 người |
| Mật độ xây dựng toàn khu: | 25% |
| Tiện ích nội khu dự án: | Khu tổ chức sự kiện, tiệc cưới, phòng tập gym & yoga, trung tâm giải trí và khu quà lưu niệm, khu vui chơi trẻ em với nhà trên cây, khu vực đọc sách, hồ bơi, khu vực đài phun nước, đường tản bộ,… |
| Thời gian sở hữu: | 50 năm với khách nước ngoài & sở hữu lâu dài với khách Việt Nam |
| Năm khởi công: | 2024 |
| Thời gian hoàn thành (Dự kiến) | 2030 |
| Tiêu chuẩn bàn giao: | 4-5 sao |
| Pháp lý dự án: | Sổ Hồng lâu dài |
Dự án Vinhomes Đức Hòa Long An được quy hoạch để cung cấp một loạt các sản phẩm bất động sản đa dạng, từ căn hộ hiện đại, nhà phố thương mại sầm uất, biệt thự sang trọng đến shophouse tiện lợi, đáp ứng trọn vẹn nhu cầu an cư và kinh doanh của cư dân
Không chỉ vậy, dự án còn kiến tạo một hệ sinh thái tiện ích nội khu đồng bộ và đẳng cấp, bao gồm trường học chất lượng cao, bệnh viện hiện đại, trung tâm thương mại sầm uất, siêu thị tiện lợi, khu vui chơi giải trí đa dạng và hồ bơi thư giãn. Tất cả những tiện ích này được thiết kế nhằm mang đến một cuộc sống trọn vẹn, tiện nghi và thoải mái cho cộng đồng cư dân tại Vinhomes Đức Hòa Long An.
Vị trí đắc địa của khu đô thị Vinhomes Urban Lake mở ra cánh cửa kết nối đa chiều, mang đến cho cư dân muôn vàn trải nghiệm sống phong phú.
Tọa lạc tại giao điểm chiến lược, Ecopark Long An tiếp giáp với tuyến cao tốc TP. Hồ Chí Minh – Trung Lương, huyết mạch giao thông quan trọng của khu vực phía Nam. Từ đây, cư dân có thể dễ dàng di chuyển đến trung tâm TP. Hồ Chí Minh sôi động hay khám phá vẻ đẹp miệt vườn sông nước của các tỉnh miền Tây Nam Bộ.
Không chỉ thuận tiện kết nối giao thông, Vinhomes Urban Lake còn là điểm đến lý tưởng để trải nghiệm văn hóa, du lịch và kinh tế. Với vị trí cửa ngõ, cư dân có thể dễ dàng tiếp cận các trung tâm kinh tế, văn hóa, du lịch lớn của khu vực, tận hưởng cuộc sống tiện nghi và đa dạng.
+50 TIỆN ÍCH HẤP DẪN
Eco Retreat dưới sự quản lý và điều hành của một thương hiệu quản lý 5 sao quốc tế, không chỉ đơn thuần là một nơi ở. Eco Retreat mang đến cho quý cư dân không gian sống phong cách resort, cùng trải nghiệm tận hưởng sự tiện nghi và dịch vụ chất lượng bậc nhất.
ĐĂNG KÝ ĐỂ NHẬN
THÔNG TIN
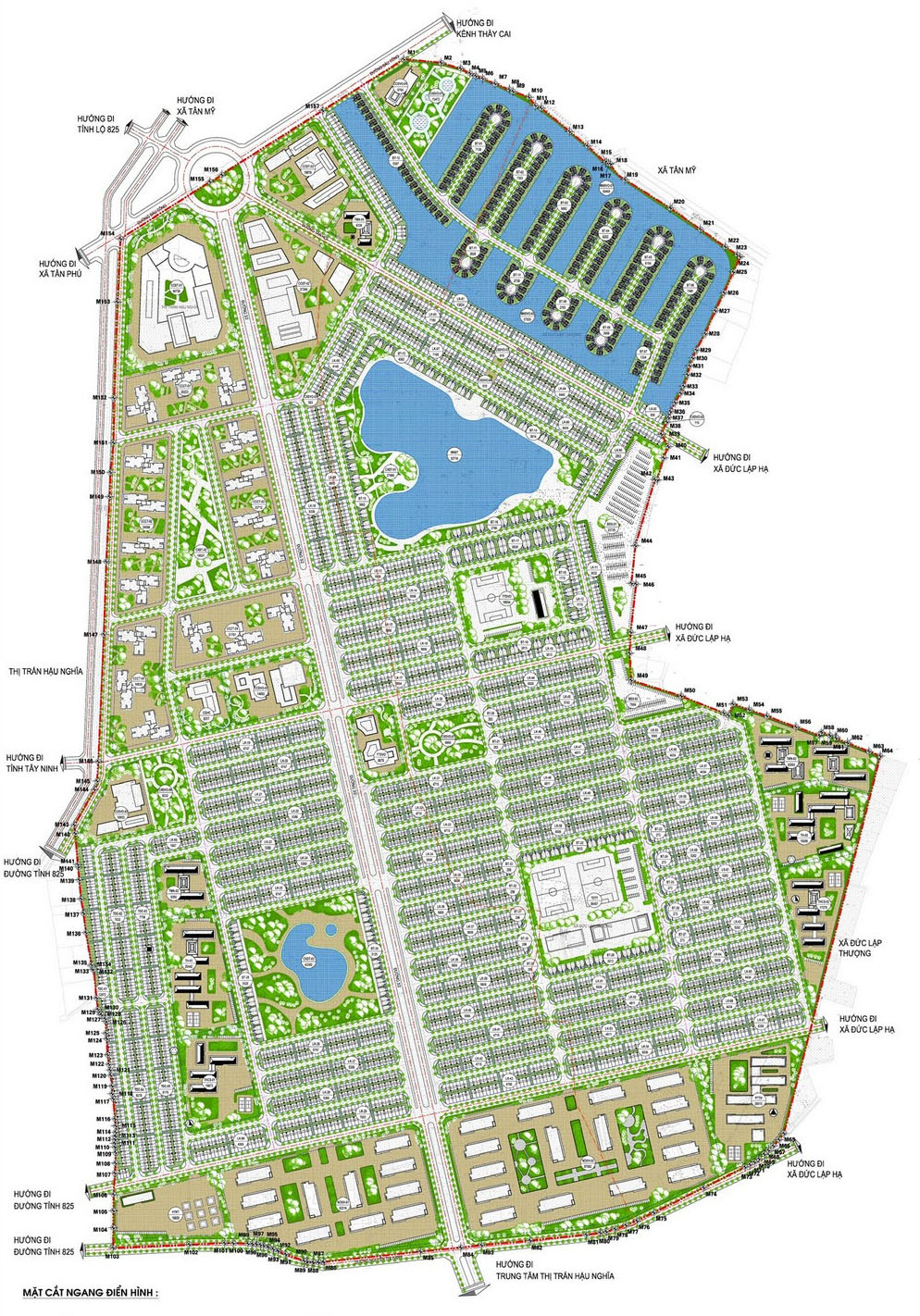
Mặt bằng dự án Vinhomes Urban Lake được quy hoạch bài bản với đa dạng loại hình sản phẩm, từ biệt thự, nhà phố đến shophouse. Khu đô thị được chia thành các phân khu chức năng rõ ràng, xen kẽ với hệ thống cây xanh và mặt nước. Các dãy nhà được bố trí hợp lý, tối ưu hóa không gian sống và tầm nhìn. Đặc biệt, dự án dành phần lớn diện tích cho công viên, hồ cảnh quan và tiện ích nội khu, mang đến môi trường sống xanh mát và trong lành. Mặt bằng tổng thể Vinhomes Urban Lake thể hiện sự kết hợp hài hòa giữa kiến trúc hiện đại và thiên nhiên, tạo nên một không gian sống lý tưởng.
Với tiến độ thi công nhanh chóng, dự kiến hoàn thiện vào cuối năm 2026, Vinhomes Urban Lake hứa hẹn sẽ trở thành khu đô thị đáng sống bậc nhất Long An, mang đến không gian sống hiện đại, tiện nghi và đẳng cấp cho cư dân.
Dự án Vinhomes Urban Lake tại Long An đang được triển khai với tiến độ nhanh chóng. Hiện tại, dự án đang trong giai đoạn hoàn thiện hạ tầng kỹ thuật và cảnh quan. Các hạng mục nhà ở thấp tầng như biệt thự, nhà phố cũng đang được xây dựng song song. Dự kiến, những cư dân đầu tiên sẽ được bàn giao nhà vào cuối năm 2026. Vinhomes Urban Lake hứa hẹn sẽ là khu đô thị đáng sống bậc nhất Long An, mang đến không gian sống hiện đại và tiện nghi cho cư dân.
Nhà mẫu Vinhomes Urban Lake được thiết kế tinh tế, hiện đại với không gian mở, tối ưu hóa công năng sử dụng. Nội thất sang trọng, được lựa chọn từ các thương hiệu nổi tiếng, mang đến vẻ đẹp đẳng cấp và tiện nghi. Khách hàng khi tham quan nhà mẫu sẽ được trải nghiệm thực tế không gian sống lý tưởng tại Vinhomes Urban Lake. Đây là cơ hội để cảm nhận rõ nét hơn về chất lượng cuộc sống và tiềm năng đầu tư của dự án.
ĐĂNG KÝ ĐỂ NHẬN